

010-00012
オリジナル工具その他
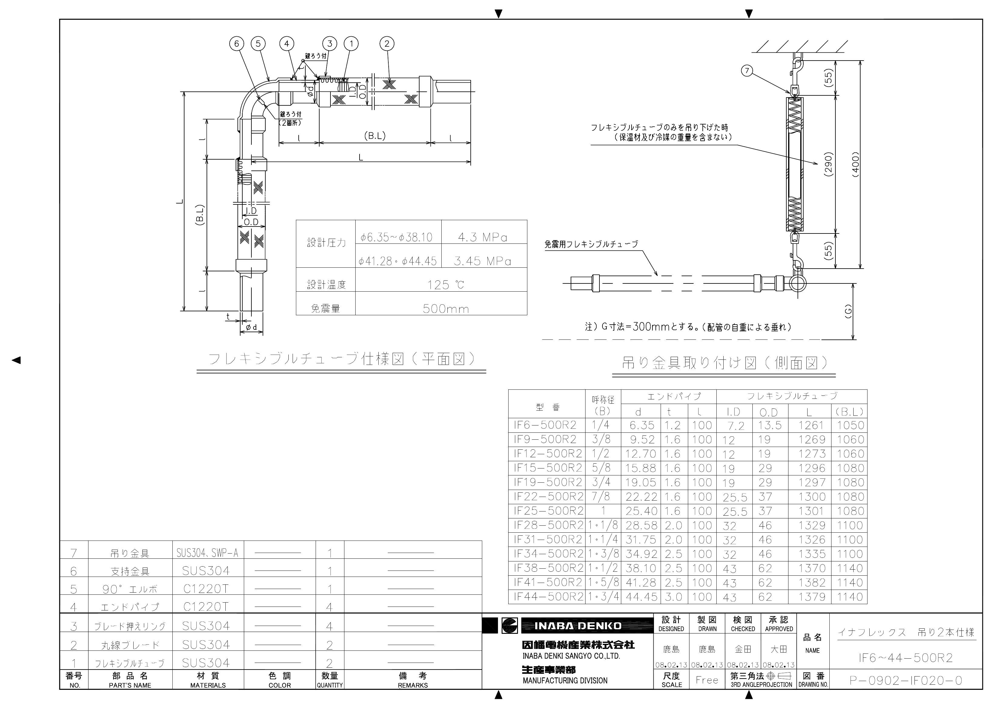
【IF】イナフレックスR2
- 生産終了
注意
冷媒免震配管の施工を行う際には、「技術資料」を確認してください。
イナフレックスの指定取り付けピッチおよび取り付け形状は必ず守ってください。
イナフレックスがねじれないように、配管接続を行ってください。
ろう付け作業前に、フレキシブルチューブを完全にクセ付けしておき、曲げ反力がかからない状態で行ってください。
配管のろう付作業時は、濡れタオルなどを使用して熱がフレキシブルチューブのろう付部に伝わらないよう注意してください。
ろう付けが完了するまで仮の支持具でサポートするなどして、フレキシブルチューブの自重がろう付け部にかからないようにしてください。
室外機の仕様や施工状況により、共鳴音が発生することがあります。
ダウンロードデータ
-
本体画像
-
本体画像
-
仕様書
-
仕様図面
-
仕様図面
-
仕様図面
-
施工要領手順書
-
試験報告書
-
CAD(DXF)
-
CAD(DXF)
-
CAD(DXF)
お問い合わせ
随時お問い合わせを受け付けております。お電話の場合は、お近くの営業拠点にご連絡ください。
製品詳細
コードNo. | 型番 | 標準価格 | 梱包 |
---|
- 受受注生産
- 終生産終了
- 在在庫限り